2d drawing details of basketball sports court ground dwg file
Description
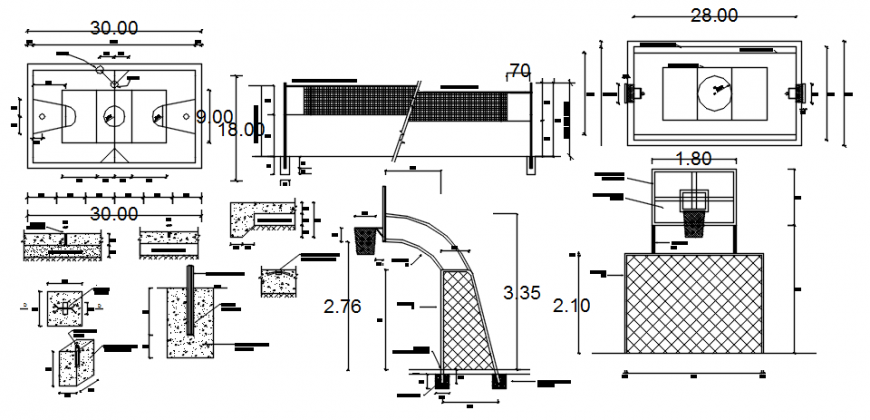
2d drawings details of basketball sports court ground dwg file that shows ground plan details along with ground markings signs dteials and basketball net detail with volleyball ground and volleyball net details also included in drawings.
Uploaded by:
Eiz
Luna
